Suchagent
de de

Merkzettel

Ihr Merkzettel enthält derzeit keine Objekte
M 2839

Lagerflächen mit Büro in Hallwang zu vermieten

  • Art
    Betriebsliegenschaften
  • Ort
    Hallwang
  • Nutzfläche
    574,00 m²
  • Mietpreis netto
    4.960,00 €
  • Kaution
    3 Bruttomonatsmieten zzgl. 20% USt.

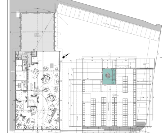
Objektbeschreibung

Das Mietobjekt bietet einen großen, hohen Lagerbereich mit angeschlossenen Büro- Meeting- und Sanitärbereichen. Der Lagerbereich weist an den Seiten eine lichte Höhe von 9m und unter dem First eine Höhe von 10m auf. Im Erdgeschoß befindet sich ein Lagerbüro und eine Besprechungsecke, sowie eine kleine Teeküche. Im Obergeschoss steht ein multifunktionales Büro mit Besprechungsmöglichkeiten zur Verfügung.

Die Zufahrt zur Halle erfolgt ebenerdig, über 2 große Rolltore. Kleintransporter und LKW können über diese in die Halle einfahren und ent- und beladen werden.

Angebot unverbindlich und freibleibend.

Lage

Die Liegenschaft befindet sich in Hallwang, einer attraktiven und verkehrsgünstig gelegenen Gemeinde unmittelbar nordöstlich der Stadt Salzburg. Durch die Nähe zur Landeshauptstadt ist eine ausgezeichnete Anbindung an das städtische Zentrum gegeben – die Salzburger Innenstadt ist in nur wenigen Fahrminuten erreichbar. Die öffentliche Verkehrsanbindung ist sehr gut ausgebaut. Mehrere Buslinien des Salzburger Verkehrsverbundes, darunter die Linie 131, verbinden Hallwang regelmäßig mit Salzburg, Eugendorf, Seekirchen und den umliegenden Gemeinden. Zusätzlich steht mit der S-Bahn-Station Hallwang–Elixhausen eine schnelle Verbindung in das Salzburger Stadtgebiet sowie Richtung Obertrum zur Verfügung. Auch die Anbindung an das überregionale Straßennetz ist hervorragend: Die Westautobahn A1 verläuft in unmittelbarer Nähe, und die Autobahnanschlussstelle Salzburg-Nord ist in wenigen Minuten erreichbar. Dadurch bestehen optimale Verbindungen in Richtung München, Linz und Wien. Insgesamt überzeugt die Lage durch ihre Kombination aus Stadtnähe, sehr guter öffentlicher Erreichbarkeit und optimaler Verkehrsanbindung an das regionale und überregionale Straßennetz.

Vermittlungshonorar

Vermittlungshonorar laufzeitabhängig, max. 3 Bruttomonatsmieten (Miete + Betriebskosten) zzgl. USt
 Helmut Fritz
Ansprechpartner
Helmut Fritz

Haben Sie Fragen zu einem der Objekte?

+43 662 830043 - 0
office@hh-immo.at