Suchagent
de de

Merkzettel

Ihr Merkzettel enthält derzeit keine Objekte
M 2817/5

Gut sichtbare Geschäftsfläche mit optimaler Verkehrsanbindung

  • Art
    Geschäftslokale
  • Ort
    Salzburg Stadt
  • Nutzfläche
    96,33 m²
  • Mietpreis netto
    1.444,95 €
  • Nebenkosten netto
    168,58 €
  • HWB
    152 kWh/m²a
  • fGEE
    2.14
  • Kaution
    3 Bruttomonatsmieten zzgl. 20% USt.

Objektbeschreibung

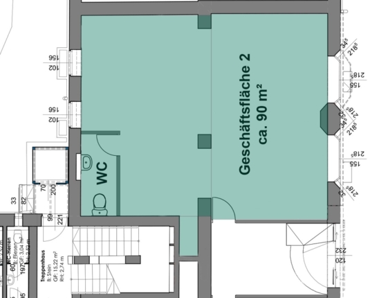
Die zur Vermietung stehende Gewerbeeinheit mit einer Gesamtfläche von ca. 89 m² befindet sich in einem gepflegten Salzburger Altbau an einer stark frequentierten Hauptstraße. Durch die großzügige Fensterfront sowie die automatische Glasschiebetür im Eingangsbereich entsteht eine helle und einladende Atmosphäre. Der barrierefreie Zugang und ein repräsentativer Empfangsbereich sorgen für ein professionelles Umfeld – sowohl für Kunden als auch Mitarbeitende.

Der Kundenzugang erfolgt direkt von der Straße, während ein separater Mitarbeitereingang über das Treppenhaus zur Verfügung steht. So ist eine funktionale Trennung zwischen öffentlichen und internen Bereichen gegeben.

Die Einheit befindet sich in einem sehr gepflegten Zustand: Im Erdgeschoss wurde hochwertiger Feinsteinzeugboden verlegt. Die Ausstattung umfasst eine Ausstellungsfläche, EDV-Verkabelung, Damen- und Herren-WCs sowie Akustikdecken, die für eine angenehme Arbeitsumgebung sorgen.

Ein direkt von der Einheit zugängliches Kellerabteil bietet zusätzlichen Stauraum und eignet sich ideal als Lager oder Archiv.

Zur Mieteinheit gehören zudem ein Außenstellplatz, die je zu € 50,– netto/Monat angemietet werden können.

Dank der ausgezeichneten Sichtlage und der hochwertigen Ausstattung bietet diese Immobilie beste Voraussetzungen für unterschiedlichste gewerbliche Nutzungskonzepte.

Angebot unverbindlich und freibleibend.

Lage

Das Objekt befindet sich im Salzburger Stadtteil Lehen an der stark frequentierten Ignaz-Harrer-Straße. Der Standort überzeugt durch eine ausgezeichnete Verkehrsanbindung – sowohl für den Individualverkehr als auch mit öffentlichen Verkehrsmitteln. Die Bushaltestelle „Roseggerstraße“ liegt direkt vor der Türe und die nächste S-Bahn-Station „Salzburg Mülln-Altstadt“ ist in etwa 10 Gehminuten erreichbar.

Vermittlungshonorar

Vermittlungshonorar laufzeitabhängig, max. 3 Bruttomonatsmieten (Miete + Betriebskosten) zzgl. USt
 Matthias Hartinger, MA
Ansprechpartner
Matthias Hartinger, MA

Haben Sie Fragen zu einem der Objekte?

+43 662 830043 - 0
office@hh-immo.at