Suchagent
de de

Merkzettel

Ihr Merkzettel enthält derzeit keine Objekte
M 2818/2

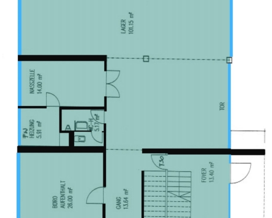
Büro- und Lagerkombination in Wals / Siezenheim zu vermieten

  • Art
    Betriebsliegenschaften
  • Ort
    Wals / Siezenheim
  • Nutzfläche
    512,00 m²
  • Mietpreis netto
    6.275,00 €
  • Nebenkosten netto
    400,00 €

Objektbeschreibung

Das moderne Gebäude wurde im Jahr 2002 auf dem Gelände der ehemaligen Kaserne Siezenheim, auf einem Grundstück im Ausmaß von über 1.400m² - errichtet. Die Immobilie befindet sich im beliebten Gewerbegebiet Wals / Siezenheim. Das Areal ist in bester Lage, am Stadtrand von Salzburg, ist sehr bekannt und bietet bereits vielen Gewerbetreibenden einen hervorragenden Stützpunkt für Ihre Unternehmen.

Im Erdgeschoss befinden sich der Eingangsbereich und der Stiegenaufgang zu den Büros. Das Lager im EG hat inkl. Nebenräume eine Gesamtfläche von 183m². Im Obergeschoß befinden sich der Empfang/Sekretariat, 5 Büros, 1 Großraumbüro, Besprechungsraum sowie Nasszellen und die Teeküche im Gesamtausmaß von 329m². Das Gebäude ist nicht unterkellert und die Immobilie wird unmöbliert vermietet.

Angebot unverbindlich und freibleibend.

Lage

Die Lage am westlichen Stadtrand von Salzburg und die unmittelbare Nähe zur Autobahn zeichnet diese Liegenschaft besonders aus. Sowohl der Autobahnanschluss "Salzburg Klessheim", als auch der Anschluss "Salzburg Flughafen" sind in unmittelbarer Umgebung, in ca. 1 Minute erreichbar. Der Flughafen von Salzburg ist mit dem Auto in 5 Min. erreichbar, der Hauptbahnhof Salzburg ist mit dem Auto in ca. 15 Minuten erreicht. Auch die öffentliche Anbindung ist sehr gut, sodass auch energiesparende und nachhaltige Wege zum Arbeitsplatz gegeben sind. Durch die ausgeprägte Entwicklung als Gewerbezentrum ist eine sehr gute Straßen Infrastruktur vorhanden, wodurch auch LKW leicht ihr Ziel erreichen können.

Vermittlungshonorar

Vermittlungshonorar laufzeitabhängig, max. 3 Bruttomonatsmieten (Miete + Betriebskosten) zzgl. USt
 Helmut Fritz
Ansprechpartner
Helmut Fritz

Haben Sie Fragen zu einem der Objekte?

+43 662 830043 - 0
office@hh-immo.at