Suchagent
de de

Merkzettel

Ihr Merkzettel enthält derzeit keine Objekte
M 2149/17

Zentral gelegene Gewerbeliegenschaft mit Halle und Büro-/Showroomflächen

  • Art
    Betriebsliegenschaften
  • Ort
    Salzburg Stadt
  • Nutzfläche
    977,37 m²
  • Mietpreis netto
    7.074,29 €
  • Nebenkosten netto
    1.535,63 €
  • Kaution
    3 Bruttomonatsmieten zzgl. USt

Objektbeschreibung

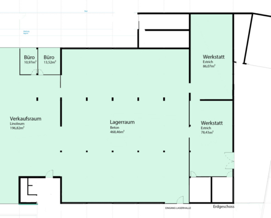
ca. 950 m² | Lagerhalle mit 6 m Raumhöhe | Showroom | Werkstatt & Lagerflächen | zentrale Lage Salzburg

Zur Vermietung steht eine vielseitig nutzbare Gewerbeimmobilie mit rund 950 m² Nutzfläche, bestehend aus Lagerhalle, Werkstatt-, Büro- und Showroomflächen in zentraler Stadtlage von Salzburg.

Herzstück ist die ca. 470 m² große Lagerhalle mit rund 6 m Raumhöhe, offener Struktur und guter Befahrbarkeit. Mehrere Lichtkuppeln sorgen für natürliche Belichtung und unterstützen effiziente Arbeitsabläufe.

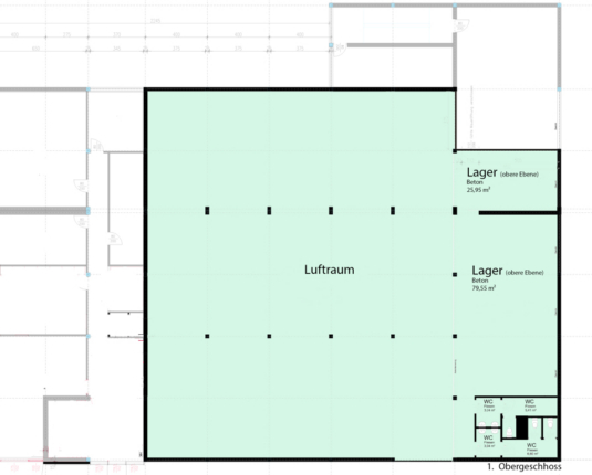
Ergänzt wird die Einheit durch Werkstattflächen mit insgesamt ca. 160 m² sowie zusätzliche Lagerflächen im Obergeschoss mit ca. 100 m². Ein straßenseitiger Bereich mit ca. 200 m² eignet sich ideal als Verkaufsfläche, Showroom oder Büro- und Kundenservicebereich. Große Fensterflächen ermöglichen eine helle Arbeitsumgebung.

Sanitäreinrichtungen für Damen und Herren sind vorhanden. Kundenparkplätze befinden sich direkt vor dem Gebäude.

Die Kombination aus zentraler Lage und dieser Flächenstruktur ist selten und bietet vielfältige Nutzungsmöglichkeiten für Unternehmen aus den Bereichen Handel, Produktion, Logistik, Dienstleistungen sowie Freizeit- und Sportbetriebe.

Angebot unverbindlich und freibleibend.

Lage

Die angebotene Liegenschaft befindet sich in zentraler Stadtlage von Salzburg mit sehr guter infrastruktureller Anbindung. Das Andräviertel ist in wenigen Minuten erreichbar. In unmittelbarer Umgebung stehen zahlreiche Einkaufs- und Dienstleistungsbetriebe sowie gastronomische Angebote zur Verfügung. Die Verkehrsanbindung ist ausgezeichnet: Die Salzburger Innenstadt sowie wichtige Verkehrsachsen sind rasch erreichbar. Öffentliche Verkehrsmittel befinden sich in fußläufiger Distanz und gewährleisten eine komfortable Erreichbarkeit. Besonders hervorzuheben ist die Kombination aus zentraler Lage und gewerblicher Nutzbarkeit, da vergleichbare Lager- und Werkstattflächen üblicherweise eher in peripheren Lagen zu finden sind.

Vermittlungshonorar

Vermittlungshonorar laufzeitabhängig, max. 3 Bruttomonatsmieten (Miete + Betriebskosten) zzgl. USt
Mag. Raffael Essl
Ansprechpartner
Mag. Raffael Essl

Haben Sie Fragen zu einem der Objekte?

+43 662 830043 - 0
office@hh-immo.at