Suchagent
de de

Merkzettel

Ihr Merkzettel enthält derzeit keine Objekte
M 2843

Ruhiges und gepflegtes Büro im Stadtteil Aigen

  • Art
    Büros
  • Ort
    Salzburg Stadt
  • Nutzfläche
    126,79 m²
  • Mietpreis netto
    1.331,30 €
  • Nebenkosten netto
    809,00 €
  • HWB
    60 kWh/m²a
  • fGEE
    1.14
  • Kaution
    3 Bruttomonatsmieten zzgl. 20% USt.

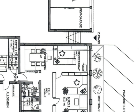
Objektbeschreibung

Diese gepflegte Gewerbeeinheit überzeugt durch ihre helle und freundliche Atmosphäre. Die Bürofläche befindet sich in einem Mehrfamilienhaus und eignet sich ideal für Unternehmen, die Wert auf ein ruhiges Umfeld und das Alleinsein im Haus legen.

Die Einheit liegt im Halbuntergeschoss und ist über ein allgemeines Stiegenhaus zugänglich. Bereits beim Betreten empfängt ein freundlicher Empfangsbereich mit Tresen Mitarbeiter und Besucher.

Die Büroräume sind lichtdurchflutet und bieten durch Oberlichten zum Gang eine angenehme Arbeitsatmosphäre. Ein hoch- und neuwertiger PVC Boden in Holzoptik unterstreicht den gepflegten Gesamteindruck. Praktische Einbauschränke sorgen für zusätzlichen Stauraum. Die vorhandene Möblierung kann bei Bedarf abgelöst werden.

Die Einheit ist technisch zeitgemäß ausgestattet: Neben einer vollständigen EDV-Verkabelung steht ein Serverschrank für die zentrale IT-Struktur zur Verfügung. Eine Teeküche ergänzt das Angebot und trägt zu einer angenehmen Arbeitsumgebung bei. Ergänzt wird die Einheit durch ein WC und einem zusätzlichen Stauraum unter der Treppe.

Eine Beschilderung im Treppenhaus ist möglich und bietet damit eine gute Sichtbarkeit für Kunden und Geschäftspartner.

Zur Einheit gehören zwei Außenstellplätze sowie ein Garagenstellplatz, die bereits im Mietpreis inkludiert sind.

Angebot unverbindlich und freibleibend.

Lage

Die Liegenschaft befindet sich auf der östlichen Salzachuferseite der Stadt Salzburg, im beliebten Stadtteil Aigen. Eingebettet zwischen den Bezirken Salzburg Süd, Parsch und dem Gaisberg bietet die Lage einen eine gute Anbindung. Im direkten Umfeld finden sich zahlreiche Einrichtungen des täglichen Bedarfs. Besonders hervorzuheben ist die unmittelbare Nachbarschaft mit einer Bank, Apotheke sowie einer Drogeriefiliale. Auch weitere Nahversorger, wie etwa ein Lebensmittelmarkt, befinden sich in unmittelbarer Nähe. Dank der sehr guten Verkehrsanbindung – die nächstgelegene Bushaltestelle liegt direkt vor der Haustür – ist die Salzburger Innenstadt in nur etwa 10 Minuten bequem mit dem Bus erreichbar.

Vermittlungshonorar

Vermittlungshonorar laufzeitabhängig, max. 3 Bruttomonatsmieten (Miete + Betriebskosten) zzgl. USt
 Matthias Hartinger, MA
Ansprechpartner
Matthias Hartinger, MA

Haben Sie Fragen zu einem der Objekte?

+43 662 830043 - 0
office@hh-immo.at