Suchagent
de de

Merkzettel

Ihr Merkzettel enthält derzeit keine Objekte
M 2862/1

Gewerbeobjekt bei Salzburg nahe der Autobahn

  • Art
    Betriebsliegenschaften
  • Ort
    Plainfeld
  • Grundstücksfläche
    6.519,00 m²
  • Mietpreis netto
    16.800,00 €
  • Nebenkosten netto
    6.500,00 €
  • HWB
    74 kWh/m²a
  • fGEE
    1.17
  • Kaution
    3 Bruttomonatsmieten zzgl. 20% USt.

Objektbeschreibung

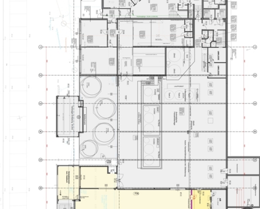
**ca. 2.500 m² Gewerbefläche | 6.500 m² Grundstück| 3 Laderampen | 2 Stapler | 34 Stellplätze | nahe A1 Thalgau**

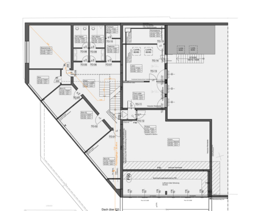
Zur Vermietung steht eine Gewerbeliegenschaft in Plainfeld bei Salzburg mit rund 2.572 m² Nutzfläche. Die Flächen umfassen ca. 2.041 m² Hallen- und Lagerbereiche sowie rund 531 m² Büro- und Nebenflächen. Das Objekt besteht aus mehreren Hallenbereichen mit integriertem Hochregallager sowie einem angebundenen Bürotrakt über zwei Ebenen.

Die Hallen sind funktional strukturiert und für Lager- und Logistiknutzungen ausgelegt. Regalsysteme sind vorhanden, zwei Stapler sind Teil der Ausstattung. Die Anlieferung erfolgt über mehrere Sektionaltore sowie drei Laderampen. Ergänzend steht ein überdachter Ladebereich zur Verfügung.

Auf dem Grundstück stehen 34 PKW-Stellplätze zur Verfügung.


Angebot unverbindlich und freibleibend.

Lage

Der Standort Nähe Thalgau bietet eine gute Erreichbarkeit. Die A1 Westautobahn ist über die Anschlussstelle Thalgau in rund 6 km erreichbar.

Vermittlungshonorar

Vermittlungshonorar laufzeitabhängig, max. 3 Bruttomonatsmieten (Miete + Betriebskosten) zzgl. USt
Mag. Raffael Essl
Ansprechpartner
Mag. Raffael Essl

Haben Sie Fragen zu einem der Objekte?

+43 662 830043 - 0
office@hh-immo.at