Suchagent
de de

Merkzettel

Ihr Merkzettel enthält derzeit keine Objekte
M 2704/1

Top moderne Lagerflächen im Stadtteil Lehen

  • Art
    Betriebsliegenschaften
  • Ort
    Salzburg Stadt
  • Lage
    Lehen
  • Nutzfläche
    2.704,00 m²
  • Mietpreis
    Auf Anfrage
  • HWB
    8 kWh/m²a
  • fGEE
    0.65
  • Kaution
    3 Bruttomonatsmieten zzgl. USt

Objektbeschreibung

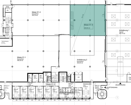
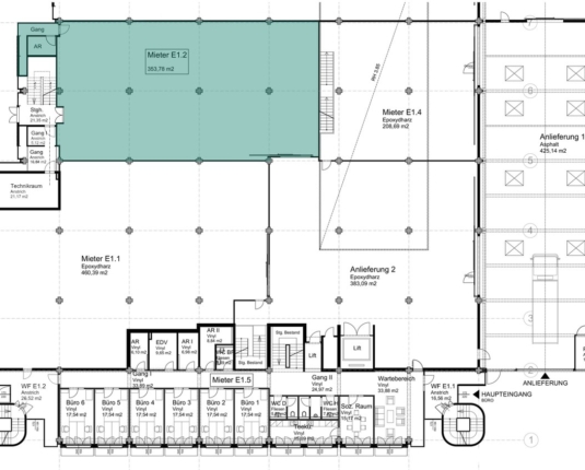
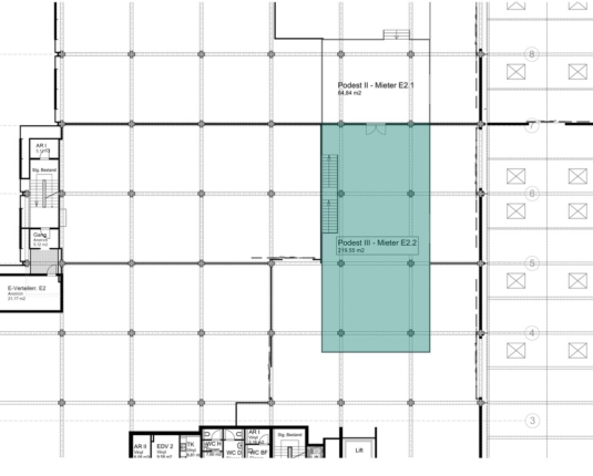
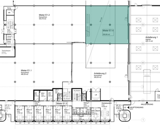
Die in dem Gebäude anmietbaren Flächen weisen insgesamt eine Nutzfläche von ca. 1.922 m² auf. Die einzelnen Einheiten liegen in der 1., 2., 4. und 5. Ebene und sind mittels Lastenaufzug erreichbar. Es können die Anlieferungszonen, der Sozialraum und die Teeküche im Erdgeschoß und die Nassräume im Untergeschoß mitbenutzt werden.

Mietpreise:
1. Ebene: Einheit 1.2 - € 9,00 / m²
1. Ebene: Einheit 1.4 - € 7,50 / m²
2. Ebene: Einheit 2.2 - € 2,70 / m²
4. Ebene: € 7,50 / m²
5. Ebene: € 2,50 / m²

Die Immobilie befindet sich im dicht besiedelten Salzburger Stadtteil Lehen, bestens sichtbar direkt an der frequentierten Siebenstädterstraße. Die nähere Umgebung der Liegenschaft ist vor allem geprägt durch verdichteten Wohnbau, Geschäfte des täglichen Bedarfs sowie schulische Einrichtungen.

Angebot unverbindlich und freibleibend.

Vermittlungshonorar

Vermittlungshonorar laufzeitabhängig, max. 3 Bruttomonatsmieten (Miete + Betriebskosten) zzgl. USt
 Helmut Fritz
Ansprechpartner
Helmut Fritz

Haben Sie Fragen zu einem der Objekte?

+43 662 830043 - 0
office@hh-immo.at