Suchagent
de de

Merkzettel

Ihr Merkzettel enthält derzeit keine Objekte
M 2838

Büroneubau in Koppl

  • Art
    Büros
  • Ort
    Koppl
  • Nutzfläche
    149,09 m²
  • Mietpreis netto
    2.100,00 €
  • Kaution
    3 Bruttomonatsmieten zzgl. 20% USt.

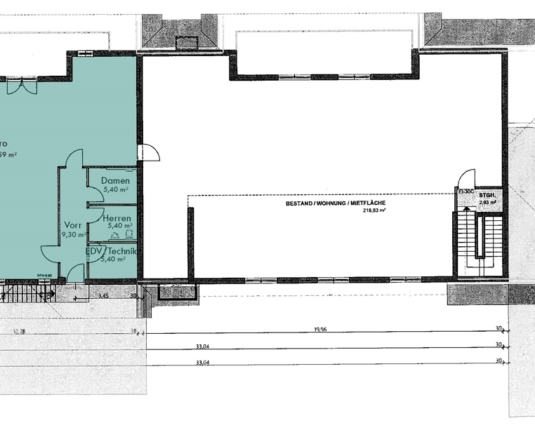
Objektbeschreibung

Die angebotene Gewerbefläche befindet sich in einem Neubau beziehungsweise in der Erweiterung einer bestehenden Autowerkstatt, um ein zusätzliches Stockwerk. Die Einheit liegt im Obergeschoss und überzeugt durch großzügige, helle Raumstrukturen.

Der Mietgegenstand präsentiert sich in sehr gutem, neuwertigem Zustand. Herzstück der Fläche ist ein großes Büro mit rund 124 m², ergänzt durch einen Technikraum mit ca. 5,4 m² sowie getrennte Sanitärflächen für Damen und Herren. Ein Balkon rundet das Angebot ab.

Die Einheit verfügt über eine zeitgemäße EDV-Verkabelung, zudem wird der Boden nach Mieterwunsch ausgeführt, sodass individuelle Anforderungen optimal berücksichtigt werden können.

Angebot unverbindlich und freibleibend.

Lage

Das Mietobjekt liegt in der Gemeinde Koppl, umgeben von einer naturnahen und ländlich geprägten Umgebung am Übergang zwischen Salzburg und dem Salzkammergut. Die Lage bietet eine angenehme Kombination aus Ruhe und guter Erreichbarkeit. Über die nahegelegene Wolfgangseestraße besteht eine solide Anbindung an das öffentliche Verkehrsnetz, wodurch Salzburg ebenso gut erreichbar ist wie die umliegenden Gemeinden. Mit dem Auto beträgt die Fahrzeit nach Salzburg je nach Ziel im Stadtgebiet rund 20 Minuten, in Richtung Thalgau sind es etwa 10 Minuten. Diese verkehrsgünstige Lage macht den Standort sowohl für Pendler als auch für betriebliche Abläufe gut nutzbar.

Vermittlungshonorar

Vermittlungshonorar laufzeitabhängig, max. 3 Bruttomonatsmieten (Miete + Betriebskosten) zzgl. USt
 Helmut Fritz
Ansprechpartner
Helmut Fritz

Haben Sie Fragen zu einem der Objekte?

+43 662 830043 - 0
office@hh-immo.at