Suchagent
de de

Merkzettel

Ihr Merkzettel enthält derzeit keine Objekte
GZ 5195/4E

Eigentum mit Wohlfühlfaktor

  • Art
    Büros
  • Ort
    Salzburg Stadt
  • Nutzfläche
    129,88 m²
  • Kaufpreis
    618.000,00 €
  • HWB
    16 kWh/m²a
  • fGEE
    0.70
  • Etage
    1

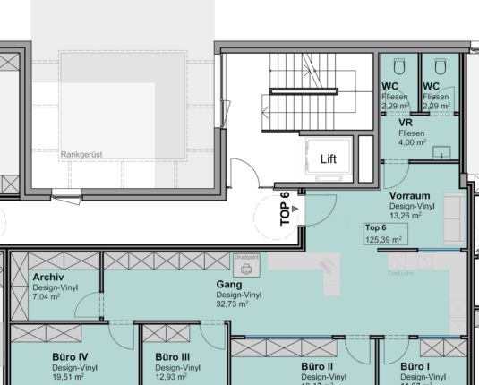
Objektbeschreibung

Die kompakte Büroeinheit mit rund 130 m² entsteht im Zuge eines Neubaus mit geplantem Baubeginn im Herbst 2026 / Frühjahr 2027. Der repräsentative Standort eignet sich ideal für Unternehmen, die eine ausgezeichnete Sichtlage zu schätzen wissen.

Es erwarten Sie freundliche Arbeitswelten in einer lichtdurchfluteten Fläche nach modernstem Stand der Technik.
Ein Personenaufzug sorgt für einen komfortablen Zugang, ausreichend Kundenparkplätze sind vor dem Gebäude vorhanden. Die zweigeschoßige Tiefgarage mit Keller und Archivflächen rundet das stimmige Gesamtbild ab.

Es handelt sich um die seltene Gelegenheit, Büroflächen im Wohnungseigentum zu erwerben und dadurch laufenden Mietzahlungen zu entkommen.

Angebot unverbindlich und freibleibend.

Lage

Die Liegenschaft liegt in einem perfekt erschlossenen Teil Salzburgs - Salzburg Mitte, Münchner Bundesstraße. Sie profitiert von ihrer ausgezeichneten Anbindung an die nahegelegene Auffahrt zur A1 sowie an das öffentliche Verkehrsnetz. Für den Mittagstisch gibt es im nahen Umfeld zahlreiche Gastronomiebetriebe und für den raschen Einkauf Geschäfte des täglichen Bedarfs.

Vermittlungshonorar

Vermittlungshonorar 3 % der Kaufvertragssumme zzgl. USt
Mag. (FH) Karin Fuchs
Ansprechpartner
Mag. (FH) Karin Fuchs

Haben Sie Fragen zu einem der Objekte?

+43 662 830043 - 0
office@hh-immo.at