Suchagent
de de

Merkzettel

Ihr Merkzettel enthält derzeit keine Objekte
M 2751/3

Helles, gepflegtes Ein-Zimmer-Büro in Henndorf

  • Art
    Büros
  • Ort
    Henndorf am Wallersee
  • Nutzfläche
    44,65 m²
  • Mietpreis netto
    551,45 €
  • Nebenkosten netto
    158,34 €
  • HWB
    38 kWh/m²a
  • fGEE
    0.70
  • Kaution
    3 Bruttomonatsmieten zzgl. 20% USt.

Objektbeschreibung

In diesem vielseitigen Mietshaus erwartet Sie eine ansprechende Mischung aus Büros, Dienstleistungsunternehmen und Einzelhandel. Die benachbarten Handelsunternehmen BIPA und BILLA sorgen für eine hohe Kundenfrequenz und beleben die Umgebung zusätzlich.

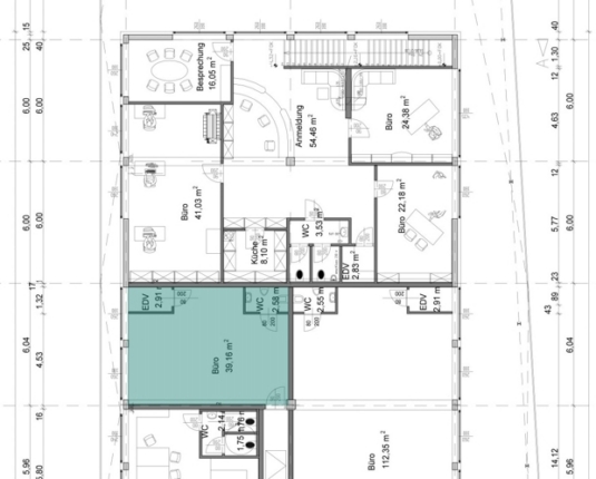
Diese ca. 44 m² offene gestaltete Büroeinheit besteht aus einem Raum für mehreren Einzel- oder Doppelarbeitsplätzen, einem EDV Raum sowie einer getrennten Damen- und Herrentoilette. Die Küchenzeile mit Spüle, Kühlschrank und kleiner Herdplatte ist in dem Raum integriert. Die lichtdurchflutete Einheit ist mit Fliesen in Holzoptik ausgestattet.

Vor dem Haus stehen ausreichend Parkplätze zur Verfügung, die die Erreichbarkeit und den Komfort für Ihre Mitarbeiter und Kunden maximieren.

Angebot unverbindlich und freibleibend.

Lage

Henndorf am Wallersee ist eine malerische Gemeinde im Bundesland Salzburg, bekannt für ihre idyllische Lage am Wallersees und ihre landschaftliche Schönheit. Die öffentliche Verkehrsanbindung ist gut: Eine nahegelegene Bushaltestelle bietet mit der Linie 130 regelmäßige Verbindungen nach Salzburg. Die Stadt Salzburg, etwa 20 Kilometer entfernt, ist mit dem Auto in ca. 25 Minuten und mit dem Bus in ca. 35 Minuten erreichbar.

Vermittlungshonorar

Vermittlungshonorar laufzeitabhängig, max. 3 Bruttomonatsmieten (Miete + Betriebskosten) zzgl. USt
 Matthias Hartinger, MA
Ansprechpartner
Matthias Hartinger, MA

Haben Sie Fragen zu einem der Objekte?

+43 662 830043 - 0
office@hh-immo.at