Suchagent
de de

Merkzettel

Ihr Merkzettel enthält derzeit keine Objekte
GZ 5195/1E

Ideal für Ordination oder zu Ausstellungszwecken

  • Art
    Geschäftslokale
  • Ort
    Salzburg Stadt
  • Nutzfläche
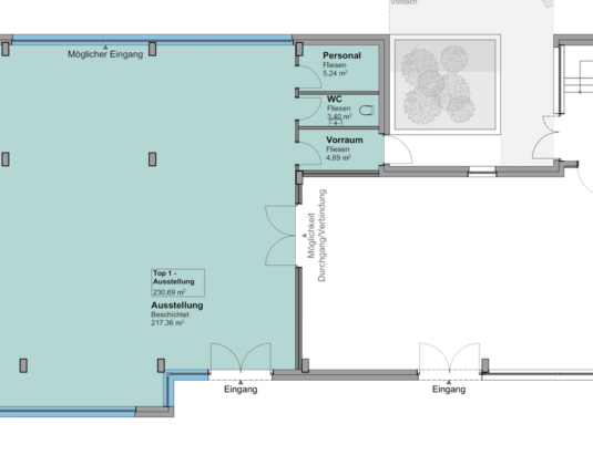
    230,69 m²
  • Kaufpreis
    1.048.000,00 €
  • HWB
    16 kWh/m²a
  • fGEE
    0.70

Objektbeschreibung

Die im Erdgeschoß gelegene Geschäftsfläche entsteht im Zuge eines Neubauprojekts mit geplantem Baubeginn Herbst 2026 / Frühjahr 2027.
Sie bietet perfekte Rahmenbedingungen für eine zeitgemäße geschäftliche Nutzung.

Die Einheit ist derzeit offen gehalten und kann individuell gestaltet werden, was Raumaufteilung und Materialien anbelangt.
Sollte ein größerer Platzbedarf bestehen, sind bis zu 525 m² umsetzbar.

Im Grundstandard enthalten sind Design-Vinylböden, Fußbodenheizung und Klimatisierung.

Parken: Vorgesehen sind Kundenparkplätze im Eigentum sowie allgemeine Stellplätze unmittelbar vor dem Haus, Zudem gibt es Tiefgaragenplätze für den eigenen Bedarf und Mitarbeiter.

Angebot unverbindlich und freibleibend.

Lage

Die Liegenschaft befindet sich in verkehrsgünstiger Lage im Salzburger Stadtteil Liefering und überzeugt durch ihre hervorragende Anbindung an das regionale und überregionale Verkehrsnetz. Die nahegelegene Autobahnauffahrt zur Westautobahn (A1) ermöglicht eine schnelle Erreichbarkeit. Mehrere Buslinien sowie der Salzburger Hauptbahnhof befinden sich in kurzer Distanz und gewährleisten eine komfortable Verbindung innerhalb der Stadt sowie in Richtung Umland. Die umliegende Infrastrukturelle umfasst Nahversorger, Gastronomiebetriebe und diverse Dienstleistungsunternehmen, wodurch der Standort sowohl für Mitarbeiter als auch für Kunden eine hohe Qualität bietet.

Vermittlungshonorar

Vermittlungshonorar 3 % der Ablösesumme zzgl. USt
Mag. (FH) Karin Fuchs
Ansprechpartner
Mag. (FH) Karin Fuchs

Haben Sie Fragen zu einem der Objekte?

+43 662 830043 - 0
office@hh-immo.at