Suchagent
de de

Merkzettel

Ihr Merkzettel enthält derzeit keine Objekte
GZ 5195/2E

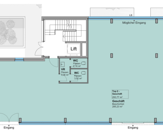
Vielseitige Gewerbefläche im Erdgeschoß

  • Art
    Geschäftslokale
  • Ort
    Salzburg Stadt
  • Nutzfläche
    293,77 m²
  • Kaufpreis
    1.338.000,00 €
  • HWB
    16 kWh/m²a
  • fGEE
    0.70

Objektbeschreibung

Die angebotene Gewerbefläche eignet sich optimal als Showroom, für Ausstellungszwecke, Ordination oder für Unternehmen mit Kundenverkehr.
Geplanter Baubeginn Herbst 2026 / Frühjahr 2027.

Großzügige Fensterflächen sorgen für eine gute Sichtbarkeit sowie eine helle und einladende Atmosphäre. Die derzeit offene Raumgestaltung ermöglicht eine flexible Nutzung und individuelle Gestaltung.

In der Grundausstattung enthalten sind Klimatisierung, Fußbodenheizung, Designvinylböden und vieles mehr.

Ergänzt wird das Angebot durch unmittelbar vor dem Eingang liegende Kundenparkplätze.

Angebot unverbindlich und freibleibend.

Lage

Ideal im Bereich Salzburg Mitte gelegen, bietet sich die einmalige Gelegenheit, Eigentum mit hervorragender Verkehrsanbindung zu erwerben. Die nahegelegene Autobahnauffahrt zur Westautobahn (A1) sowie diverse Buslinien befinden sich in kurzer Distanz und sorgen für eine komfortable Erreichbarkeit. Der Standort bietet mit den umliegenden gastronomischen Betrieben und Geschäften eine perfekte Infrastruktur.

Vermittlungshonorar

Vermittlungshonorar 3 % der Kaufvertragssumme zzgl. USt
Mag. (FH) Karin Fuchs
Ansprechpartner
Mag. (FH) Karin Fuchs

Haben Sie Fragen zu einem der Objekte?

+43 662 830043 - 0
office@hh-immo.at