Suchagent
de de

Merkzettel

Ihr Merkzettel enthält derzeit keine Objekte
GZ 5177/2

Zentrales Büro inkl. TG Stellplätze und guter Anbindung in Maxglan

  • Art
    Büros
  • Ort
    Salzburg Stadt
  • Nutzfläche
    179,64 m²
  • Kaufpreis
    604.000,00 €
  • HWB
    60 kWh/m²a
  • fGEE
    0.88
  • Etage
    1

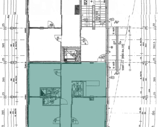
Objektbeschreibung

Zum Verkauf steht eine großzügige Gewerbefläche in sehr zentraler Stadtlage von Salzburg-Maxglan. Die Liegenschaft zeichnet sich durch ihre gute Erreichbarkeit sowie die unmittelbare Nähe zu öffentlichen Verkehrsmitteln aus – eine Bushaltestelle befindet sich direkt vor dem Gebäude.

Das Büro liegt im 1. Obergeschoss und ist bequem über einen Aufzug sowie über das großzügige Treppenhaus erreichbar. Insgesamt umfasst die Gewerbeeinheit eine Gesamtfläche von ca. 180 m², die vielfältige Nutzungsmöglichkeiten bieten. Ergänzt wird das Angebot durch eine eigene Lagerfläche mit insgesamt ca. 27 m².

Die Büro- und Besprechungsräume sind teilweise mit Teppichboden ausgestattet, während die Gänge mit Parkettboden ausgeführt sind. Große Fensterfronten sorgen für helle und angenehme Arbeitsräume. Beheizt wird die Einheit über Heizkörper. Zur Ausstattung zählen zudem eine Teeküche, getrennte WC-Einheiten sowie eine EDV-Verkabelung (CAT 5e).

Ein besonderer Vorteil ist die flexible Grundrissgestaltung: Da die Raumtrennungen überwiegend aus Trockenbauwänden bestehen, ist eine neue Raumaufteilung problemlos möglich und erlaubt eine Anpassung an individuelle Anforderungen.

Zur Einheit gehören außerdem zwei Tiefgaragenstellplätze, die eine komfortable Parksituation für Mitarbeiter gewährleisten.

Angebot unverbindlich und freibleibend.

Lage

Das Gebäude befindet sich im charmanten und vielfältigen Stadtteil Maxglan. Direkt an einem Kreisverkehr gelegen, verfügt die Liegenschaft über eine ausgezeichnete Sichtbarkeit. Zahlreiche Pendler sowie Kunden des nahegelegenen Einkaufszentrums Europark passieren täglich die angrenzende Klessheimer Allee. Die Liegenschaft liegt an einer der zentralen Einfahrtsstraßen Salzburgs und bietet dadurch eine hervorragende Verkehrsanbindung. Eine Bushaltestelle befindet sich unmittelbar vor dem Gebäude und gewährleistet eine ausgezeichnete Erreichbarkeit mit öffentlichen Verkehrsmitteln. Zudem sind Geschäfte des täglichen Bedarfs im direkten Umfeld angesiedelt.

Vermittlungshonorar

3 % der Verkaufssumme zzgl. USt
 Matthias Hartinger, MA
Ansprechpartner
Matthias Hartinger, MA

Haben Sie Fragen zu einem der Objekte?

+43 662 830043 - 0
office@hh-immo.at